Tanatorio Municipal | Andújar
Descripción de la actuación:
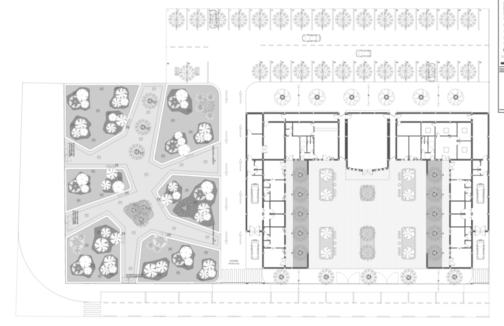
Nuevo Tanatorio en la ciudad de Andújar, junto al cementerio, dotado de cuatro salas de tanatorio, oficinas, cafetería, horno incinerador, capilla y tienda de flores, así como una zona de aparcamiento y rodeado de amplios espacios ajardinados.
La gran plaza central y el parque lateral que lo acompaña establecen un vínculo muy fuerte con las salas interiores, llegando a constituirse como una parte más del programa funcional
Ficha técnica
Localización:
Andújar, Jaén
Promotor:
Excelentísimo Ayuntamiento de Andújar
Presupuesto:
3.100.000,00€
Fecha:
2014-2016
Empresa adjudicataria:
JJJ Inversiones S.L.
Galería:





