Unifamiliar Adosada | C/ Romeral Bajo
Descripción de la actuación:
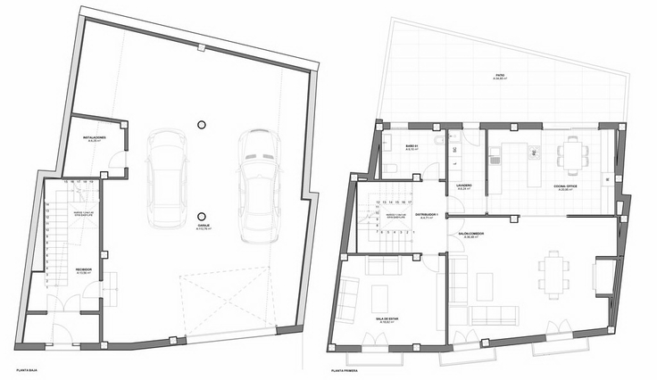
Vivienda Unifamiliar de nueva planta, de tres plantas de altura, con zona de estancia diurna en planta primera, dormitorios en planta segunda y garaje en planta baja.
El programa planteado genera una vivienda muy funcional y dotada de gran superficie, según la demanda del cliente
Galería:

