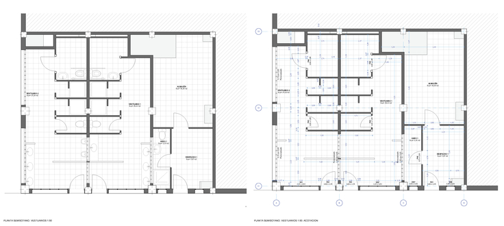
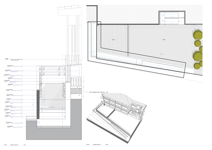
Adecuación Funcional | IES Virgen de Linarejos | Linares
Ficha técnica
Localización:
IES Virgen de Linarejos. Linares
Promotor:
Ente Público de Infraestructuras y Servicios Educacionales
Presupuesto:
139.886,27€
Fecha:
2.013
Empresa adjudicataria:
BIBIAN MORENO MESSIA
Galería:







