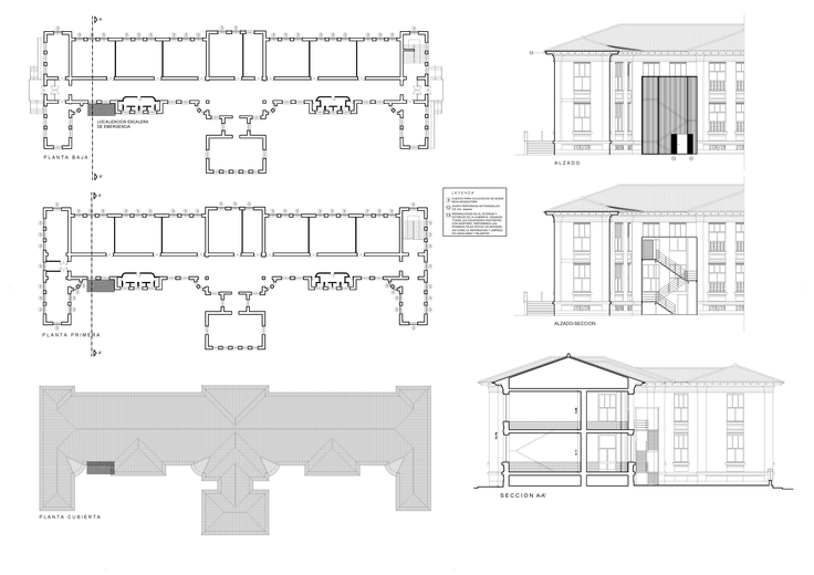
Escalera de Emergencia | Colegio Miguel de Cervantes | Lopera
Descripción de la actuación:
Se realiza el presente encargo con objeto de adecuar a la actual normativa vigente en materia contraincendios, las instalaciones destinadas a la enseñanza pública, garantizando a la par, una evacuación correcta y fluida de sus ocupantes.
La mejora de las instalaciones y adecuación a la normativa actual de los edificios existentes es una constante en los edificios que dependen de la administración.
En este sentido se proyecta y diseña una escalera exterior, adosada al edificio, accesible desde el interior, de forma que ayude y garantice, a la evacuación de las dos plantas desde las que se accede a un espacio exterior seguro.
Ficha técnica
Localización:
Colegio Miguel de Cervantes. Lopera
Promotor:
Ente Público de Infraestructuras y Servicios Educacionales
Presupuesto:
46.278,62€
Fecha:
2.008
Empresa adjudicataria:
-
Galería:





