Adecuación de Edificio | Juzgados de Úbeda
Antigua Cárcel del obispo, fue fundada por doña Mencía López de Zambrana, hermana del mencionado Sancho Iñiguez, en la primera mitad del siglo xv, para la comunidad de mujeres “arrecogidas”. Desde el siglo XVIII se destinó a prisión de religiosos, exclusivamente para penas canónicas, de lo que le viene su conocido nombre, cárcel del obispo. Sobria construcción en piedra, muy transformada, de la original solo se conserva el escudo episcopal de la portada.
El edificio (al menos su actual fachada), se encuentra comunicado con la iglesia colegial de Santa María de los Reales Alcázares por una tribuna. Data de la segunda mitad del siglo xvi, aunque su desaparecido patio, de estilo mudéjar, fuera de anterior ejecución.La fachada, único elemento existente de la antigua fábrica, elevada en los últimos años en dos hiladas, ostenta el escudo episcopal y es bastante sencilla.
Actuales juzgados, bajo su cimentación se descubrió una necrópolis de la edad de bronce (1400-1300) a.c. cuyas piezas se exhiben en el museo arqueológico de la ciudad de Úbeda, en Jaén.
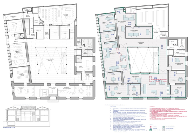
Las actuaciones llevadas a cabo comprende intervenciones en el interior y exterior del edificio, rehabilitando las cubiertas en el exterior e instalaciones y pavimentación en el interior.
Nuevos puntos de comunicación y electricidad, pavimentación de madera y pintura interior centran la actuación el interior, mientras que en el exterior, se procede al desmontaje de la cubierta de teja para su reposición reutilizando la teja desmontada.





