Convento de la Trinidad | Úbeda
La fundación de este Conjunto de la Santísima Trinidad de Úbeda, Iglesia y Convento, a cargo de los PP. Redentores Descalzos, hunde sus raíces en los primeros años de la Reconquista. De él afirmaba Xímena en sus «Anales Eclesiásticos»: «Este año de 1250 para gloria y honra del Todo Poderoso, Padre, Hijo y Espíritu Santo, fundó el Religioso convento del Orden de la Santísima Trinidad de Úbeda el Santo Rey Don Fernando en una ermita, extramuros del título de San Sebastián; siendo el primer prelado Ministro y fundador el muy venerable P. el Doctor D. Fray Agustín de Castro, Obispo que después fue de Pamplona, el cual por la poca capacidad del sitio lo trasladó al que hoy tiene».
Observar este espléndido templo de la Trinidad es tropezar casi con lo inaudito en la ciudad: una iglesia barroca de resonancias vanguardistas y castizas en un contexto arquitectónico, en una morfología urbana, donde sólo -o casi sólo- encontramos Renacimiento y su posterior pervivencia repetitiva y decadente. Ya lo he indicado en otras ocasiones, pero creo que es oportuno volverlo a repetir. En Úbeda, Plaza Mayor de la arquitectura del Renacimiento andaluz, transcurrido el último cuarto del siglo XVI, sumida su propia regresión económica y cultural, no nos volvemos a encontrar apenas con nuevas y renovadas formulaciones estilísticas. La impronta arquitectónica de Vandelvira y otros maestros es tan profunda, la decadencia económica y demográfica tan intensa, que la renovación estilística barroca sólo nos alcanzará de mano de ciertas órdenes religiosas (Carmelitas Descalzos, Redentores) y sus propios maestros,ajenos a la tradición constructiva local.
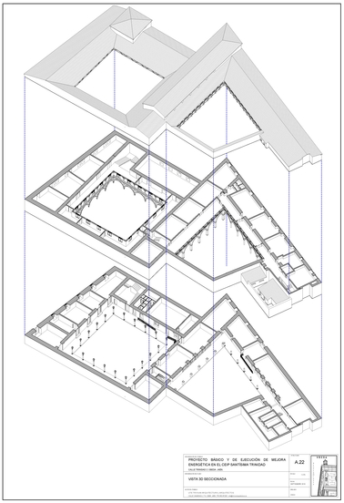
El Convento, actual colegio, consta de dos claustros. El principal queda comunicado a la Sacristía por una portada de columnas salomónicas. Este ejemplifica todo el fenómeno de pervivencias renacentistas en la arquitectura posterior de la Ciudad. Su planta es cuadrada con doble arquería de arcos de medio punto con medallones en las enjutas, siguiendo los modelos palaciegos del siglo XVI. La fecha de su ejecución, según consta en una inscripción, fue la de 1707.
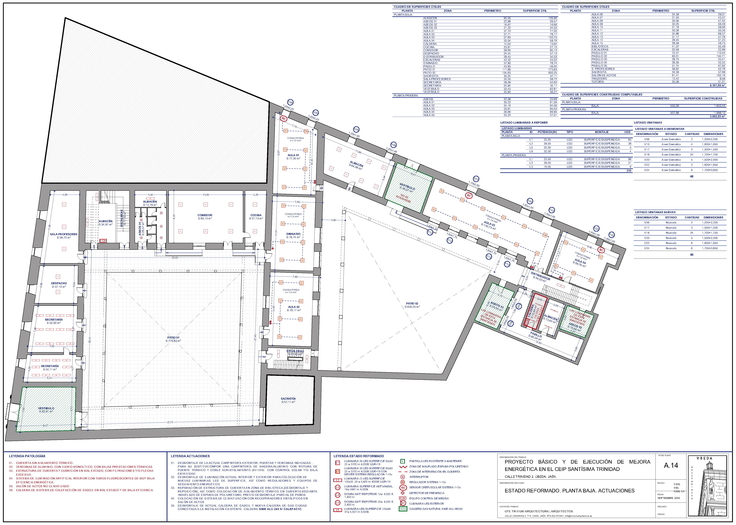
Las actuaciones previstas van encaminadas a la mejora de la eficiencia energética, actuando principalmente en carpinterías, cubiertas y sistema de iluminación, sustituyendo la totalidad de las lamparas existentes por luminarias Led. La intervención pretende ser transparente y respetuosa con el bien, por lo que se usan materiales y acabados acordes a los existentes, esto es, carpinterías de madera y cubiertas de teja árabe curva recuperada, lo que hace que la actuación quede perfectamente integrada en su entorno.
Ficha técnica
Catalogado en Grado 1º PEPCH Úbeda





