Palacio Rubín Ceballos | "Casa del Gitano"
El Palacio Rubín de Ceballos fue construido por José Cayetano Rubín de Ceballos, y fue propiedad de la familia hasta 1973, año en el que pasó a propiedad de la Fundación Catalina Mir y actualmente es usada como centro de retiro espiritual.
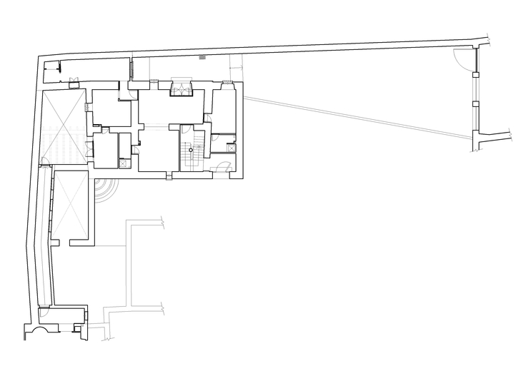
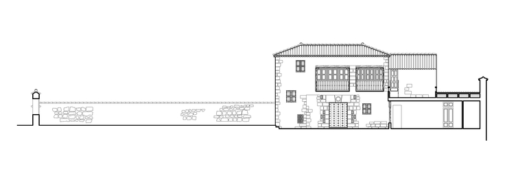
Consta de dos cuerpos divididos por una moldura que recorre toda la fachada. Se accede a él a través de una puerta adintelada enmarcada entre pilastras y sobre ella un balcón también entre pilastras, coronado por un frontón triangular, en cuyo tímpano está decorado con un sol, encontrando a los laterales los escudos del fundador. Dispone de patio central columnado y amplias zonas verdes en su interior, así como edificaciones anexas, como la casa del campanero (solo se conserva la fachada), casa del Choclo (anexa a la piscina) o la casa del Gitano, que es objeto de intervención en el presente proyecto.
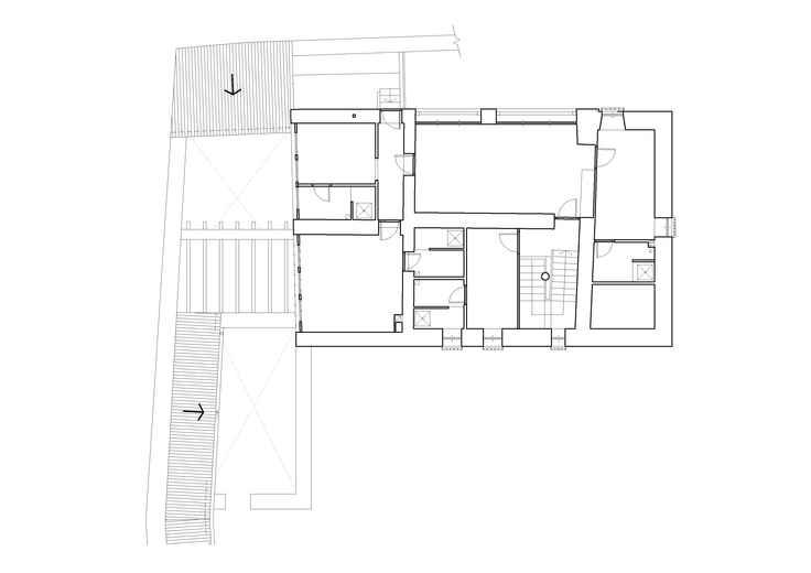
La vivienda objeto de intervención, la casa del Gitano, se encuentra ubicada en el interior del jardín del Palacio, presentando una fachada de sillería/ mampostería, con accesos por la trasera de la vivienda y por el lateral. La parte alta dispone de solanas abiertas, que dan a la trasera y exterior, presentando en el interior un alto grado de conservación de los elementos históricos. Estos elementos abarcan una amplia gama, que van desde los pavimentos de piedra, la viguería de madera de los forjados, las zapatas de piedra y madera, las cubiertas con cerchas y tableros de madera, cerrajería tipo carcelario o escaleras con mamperlán de madera. Estos elementos se encontraban, en su conjunto, con un alto grado de conservación, dando una buena muestra de lo que era una vivienda tradicional de la época, aunque a nivel de uso, se hacía necesaria una rápida intervención, dado que corría peligro de colapso.
El proyecto redactado (obra de Arturo Vargas-Machuca Caballero) contempla la puesta en valor de la vivienda, planteando algunos cambios de la distribución interior, así como cambios contructivos, necesarios para la normal habitabilidad de una vivienda actual:
- La planta baja se redistribuye, manteniendo la configuración de los muros de carga. Se conecta el edificio objeto de proyecto con el palacio con un corredor cubierto ubicado en el margen izquierdo, con una rampa suave, que disminuye las dimensiones del patio que antecede a la vivienda. Se elimina la doble altura que existe actualmente a nivel de la puerta de acceso de la fachada norte.
- La planta primera sufre modificaciones mas importantes, dado que si bien se mantiene la geometría que los muros de carga imponen, se alteran parte de las cotas de los forjado y las solanas que abren a la fachada oeste, cegando parcialmente este paño. Se unifican los niveles de los forjados de la planta primera, dado que actualmente existe un desnivel en el margen derecho.
- La configuración de huecos en las fachadas es alterada, adecuándolo a las estancias a las que dan servicio, pero teniendo en cuenta la preexistencia de los huecos originarios y la configuración de los paños de fachada.
Ficha técnica
Ambito del Plan Especial de Protección del Conjunto Histórico de Baeza. Entorno de protección de la Iglesia Catedral de Santa María, declarada BIC.















