Consultores BIM

El patrimonio es uno de nuestros ejes fundamentales, pero no el único. En TRIVIUM también nos entusiasma diseñar y construir espacios, siempre poniendo el foco en las necesidades de las personas que los van a usar. Para nosotros la arquitectura no trata solo de medidas y posiciones; la arquitectura debe despertar emociones.

Apostamos por las nuevas tecnologías, apoyándonos en plataformas BIM para el desarrollo de nuestros trabajos. Esto nos permite proporcionar a los clientes una inmersión total en los proyectos, permitiéndoles conocer el resultado final desde las primeras fases del mismo.Desde el año 2.005 apostamos por desarrollar todos nuestros proyectos con metodología BIM, por lo que hemos tenido un eficiente control directo en todas las diferentes fases por las que discurre el proyecto, desde los bocetos iniciales hasta la dirección de obra.

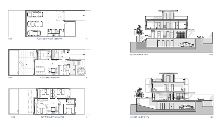
La metodología BIM parte de un modelo tridimensional, generando un volumen completo del conjunto, a partir del cual obtenemos toda la documentación planimétrica del proyecto y su información. Plantas, alzados, secciones y vistas 3D se generan automáticamente a partir del modelo levantado, siendo infinitas las posibilidades de visualización que el sistema brinda. Todos los elementos que componen el modelo, llevan asociada información relevante para el proyecto, creando una gran base de datos que se irá actualizando hasta el final de su desarrollo.

Una vez generado el modelo 3D, es posible la circulación interior por el mismo, y gracias a la tecnología de renderizado en tiempo real y unas gafas de VR (realidad virtual), es posible la inmersión total en el proyecto, recreando exactamente el resultado final.

También te ofrecemos la posibilidad de imprimir en 3D el modelo generado, obteniendo una maqueta a escala del proyecto, incluso con el mobiliario interior, haciéndonos una idea bastante cercana a la realidad.

Desde TRIVIUM siempre hemos apostado por acercar la arquitectura todo lo posible al cliente, una arquitectura cercana, comprometida y respetuosa, siendo ésta, sin duda alguna, la herramienta que nos lo permite.

×