Plurifamiliar Adosada | Balcón de Zabaleta | Cazorla
En la ciudad de Cazorla, es, sin duda alguna, uno de los lugares más visitado por todos los turistas, por sus impresionantes vistas del Castillo de la Yedra, además de poder observar, tanto las montañas que rodean Cazorla, como la Peña de los Halcones o el Cerro de Salvatierra, donde se encuentran los restos del torreón del Castillo de las Cinco Esquinas, hasta todo el barrio viejo de Cazorla, a los pies del Castillo.
Son tres pequeños balconcitos justo entre la Plaza de la Corredera y la Plaza de Santa María, al comienzo de la calle José Salcedo Cano , que une ambas plazas.
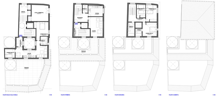
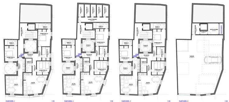
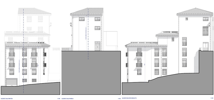
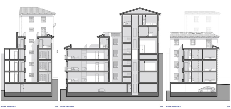
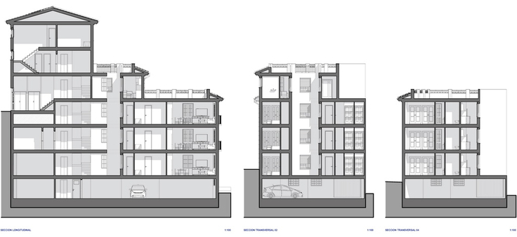
En este lugar privilegiado se levanta un edificio de viviendas y locales, aún en fase de proyecto, en el Conjunto Histórico de Cazorla. Es por este motivo que la actuación pretende ser lo más respetuosa posible con su entorno, por lo que, al tener fachada a varias calles, los volúmenes se escalonan según la altura de los edificios de cada una de ellas. El programa funcional abarca desde apartamentos de un dormitorio, a viviendas de tres dormitorios, local comercial, cocheras y trasteros.
Ficha técnica















