Unifamiliar Adosada | C/ Baja Fuente | Pegalajar
Descripción de la actuación:
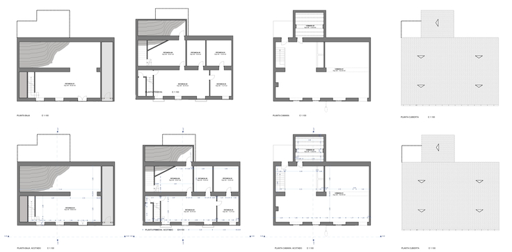
Rehabilitación de vivienda en mal estado estructural, tanto forjados como cubiertas, procediendo a la demolición parcial de estos elementos para su sustitución y adecuación de las plantas. La vivienda se situa en un lugar extremadamente sensible de la ciudad, en la plaza, junto la Ermita de la Virgen de Gracia y la Fuente de la Reja, derrame natural del acuifero subterráneo y origen del sistema hidráulico de la Huerta de Pegalajar.
Pese a lo sensible de su ubicación, la actuación realizada se integra perfectamente en el entorno donde se ubica.
Para llevar a cabo la intervención se utilizaron sistemas y materiales tradicionales, dado que la antiguedad de la vivienda y su entorno así lo requerían.
Ficha técnica
Localización:
Calle Baja Fuente 71. Pegalajar
Promotor:
-
Fecha:
2013
Empresa adjudicataria:
Construcciones Antonio Cordero
Galería:











