Rehabilitación De Edificio | Pegalajar
Rehabilitación de edificio existente, de tres plantas de altura, elegante y proporcinada fachada y cubierta inclinada de teja árabe. La entrada principal se encuentra encuadrada por una bella portada de piedra, que alcanza a la planta primera, flanqueada por escudos heráldicos.
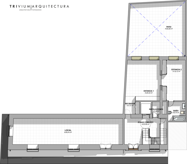
Se propone adecuar el edificio para albergar tres viviendas, la última de ellas, en el bajocubierta. Se mantiene la actual imagen del edificio, picando la tirolesa actual existente (totalmente inapropiada), y rehaciendo la cubierta, dado que en la actualidad, se encuentra en mal estado.
Se apuesta en la recuperación de un edificio histórico, con una bonita y señorial imagen, adecuandolo para albergar unas modernas y funcionales viviendas.
Se apuesta en la recuperación de un edificio histórico, con una bonita y señorial imagen, adecuándolo para albergar unas modernas y funcionales viviendas. En planta baja, los locales comerciales cierran el programa.
El resultado será la puesta en valor de un edificio histórico de la ciudad, recuperándolo y acomodándolo a un uso residencial.
Ficha técnica
Dentro de la delimitaión del Plan Especial de Protección del Lugar de Interés Etnológico Huerta de Pegalajar













