Unifamiliar Adosada | C/ Notario Alfonso Luis Sánchez | Jaén
Descripción de la actuación:
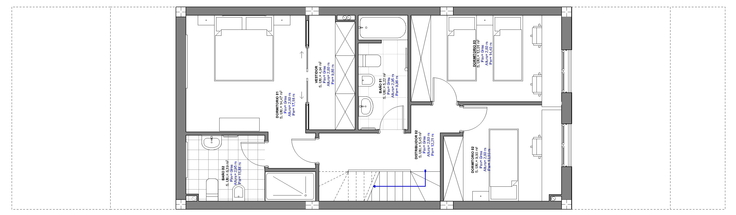
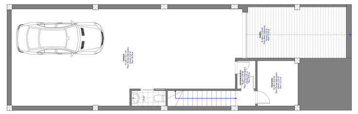
Vivienda Unifamiliar de nueva planta, de dos plantas de altura, semisótano y bajocubierta, con zona de estancia diurna en planta baja, dormitorios en planta primera, trastero en bajo cubierta y garaje en planta semisótano.
En la parte trasera se ubica un patio a través del cual se ilumina y ventila la planta semisótano.
La imagen moderna de las viviendas planteadas se integran perfectamente en la zona, desarrollando en las mismas un programa muy funcional
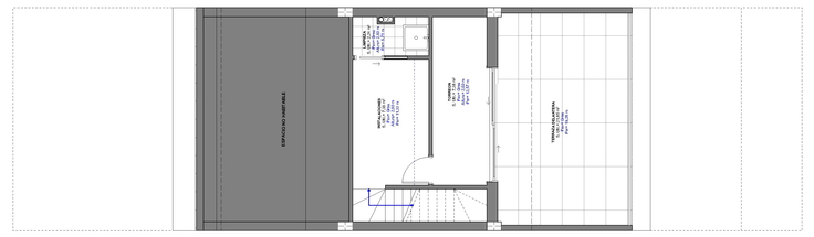
En la planta bajocubierta se genera un espacio vividero que acompaña a una gran terraza con vistas al sur de la ciudad.
Ficha técnica
Localización:
Calle Notario Alfonso Luis Sanchez
Presupuesto:
123.000,00€
Fecha:
Septiembre 2.016
Empresa adjudicataria:
Egeostoa S.L.
Galería:













