Unifamiliar Adosada | C/ Henry Dunat | Jaen
Vivienda Unifamiliar Adosada en esquina, en una de las zonas de mayor expansión de la ciudad, con una amplia superficie de parcela y en un entorno tranquilo y exento de los inconvenientes de la ciudad.
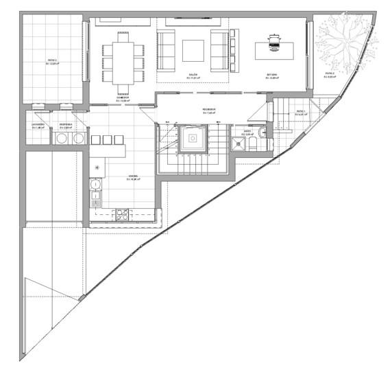
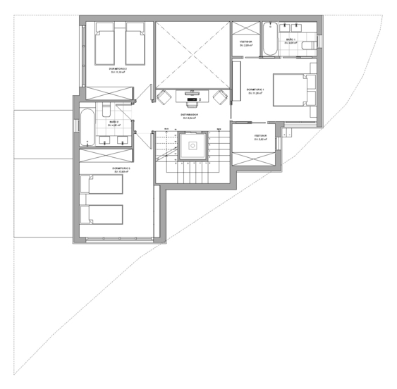
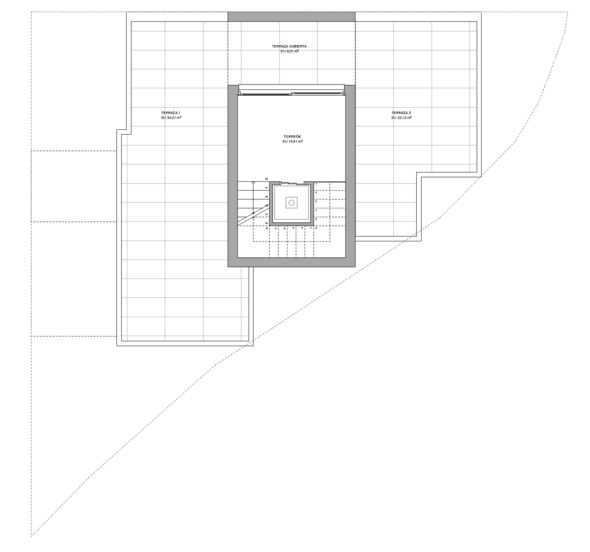
El programa funcional dispone en planta baja salón, comedor, cocina, aseo y distribuidor; en planta primera tres dormitorios, el principal con vestidor, y dos cuartos de baños; y en planta de cubiertas una gran terraza con una pequeña habitación. La planta semisótano se destina aparcamiento, trasteros e instalaciones.
En planta baja, la disposición de las piezas salón - comedor - cocina, proporciona una sucesión de espacios corridos que conectan con los patios exteriores, dando como resultado un gran espacio unitario. La doble altura que conecta la planta baja, el salón, con el distribuidor de la planta primera, proporciona una gran sensación de amplitud, dotando de iluminación natural todas las estancias interiores.
Ficha técnica




















