Unifamiliar Adosada | Pintor Cristóbal Ruiz
Vivienda Unifamiliar adosada, con acceso desde la calle Pintor Cristóbal Ruiz, en una de las zonas de expansión de la ciudad, en la zona alta del Bulevar, con planta rectangular y 128,00 m2 de parcela. La amplitud de la parcela, la singularidad de su implantación y las generosas dimensiones de su fachada al conformar la esquina, generan una vivienda muy espaciosa, con un programa funcional muy extenso, donde la regularidad de sus estancias hacen que sea muy cómoda de vivir.
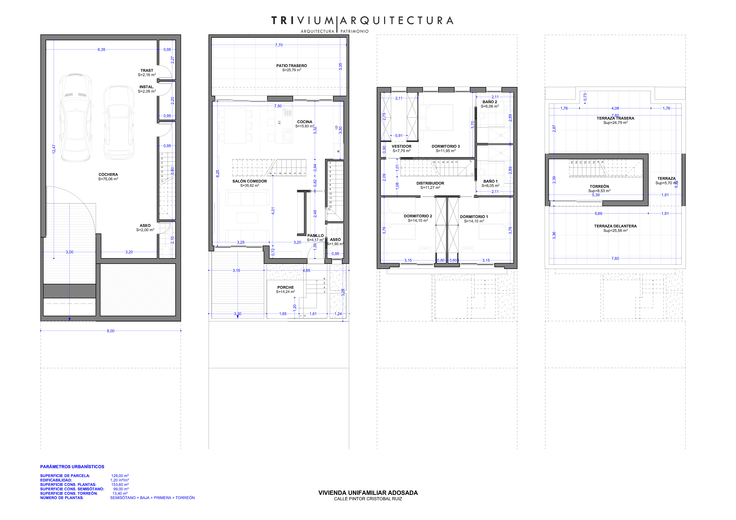
En planta semisótano un garaje de grandes dimensiones con capacidad para tres vehículos,así como zona de trasteros e instalaciones.
En planta baja se ubica el salón, el comedor, la cocina, un aseo y un patio trasero que conecta a través de un cierre de grandes dimensiones con la vivienda. La distribución planteada en esta planta posibilita espacios diáfanos y continuos, con la escalera de un tramo implantada en medio del salón, generando un espacio unitario.
En planta primera, tres grandes dormitorios, el principal con baño interior y un distribuidor, así como otro baño común, accesible desde las zonas comunes.
En planta de cubierta, una estancia que abre a dos terrazas conectadas entre si.
Ficha técnica











