Unifamiliar Adosada | C/ Roble | Jaén
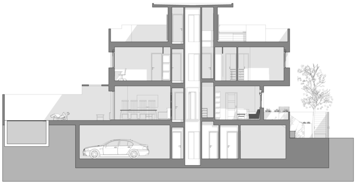
Vivienda unifamiliar de dos planta de altura y semisótano, con amplias zonas ajardinadas y piscina en el patio trasero.
La vivienda se articula con un programa funcional habitual, a nivel de tipo y número de piezas, que se vuelcan a espacios abiertos, flexibles y muy luminosos.
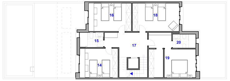
Para ello se crea un eje paralelo a la fachada que articula la vivienda en dos partes, uno volcaría a la calle y otra al patio exterior trasero. Este eje lo conformaría el núcleo de comunicaciones, escalera – ascensor - distribuidor, de generosas dimensiones, que relaciona las estancias más exteriores que dan a la calle, con la privacidad del espacio más interior.
En planta semisótano se dispone una amplia zona destinada a cochera, con cabida de hasta tres vehículos, así como un pequeño aseo y una zona de instalaciones. En la planta baja se ubican las estancias de día, salones y cocina, mientras que en la primera cuatro generosos dormitorios y dos aseos cierran el programa funcional.
Los vuelos de la planta superior sobre la baja, unido a las recatadas y estudiadas dimensiones de los huecos exteriores, protegen el interior de la vivienda y salvaguarda sus condiciones energéticas.
La cubierta se remata con un sencillo volumen que acoge un zona de trastero y lavadero, abriéndose a dos terrazas, en cada una de las fachadas exteriores, dando cabida a un solárium con zona de jacuzzi.
Ficha técnica

















