Unifamiliar Adosada | C/ Canónigo Fernando Gallardo Carpio
Vivienda Unifamiliar Entremedianeras, en una de las zonas de expansión de la ciudad, con planta rectangular y 160,00 m2 de parcela. La amplitud de la parcela y las generosas dimensiones de su fachada, generan una vivienda muy espaciosa, con un programa funcional muy extenso, donde la regularidad de sus estancias hacen que sea muy cómoda de vivir.
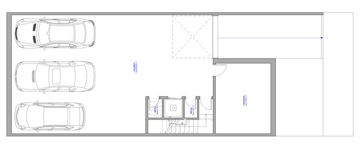
En planta semisótano un garaje de grandes dimsniones con capacidad para tres vehículos,así como zona de trasteros e instalaciones.
En planta baja se ubica el salón, el comedor, la cocina, un aseo y un amplio patio trasero que conecta a través de un cierre de grandes dimensiones con la vivienda. La distribución planteada en esta planta posibilita espacios diáfanos y continuos, siendo posible unir la cocina con el salón, generando un espacio unitario.
En planta primera, cuatro grandes dormitorios, el principal con baño interior y un distribuidor, así como otro baño común, accesible desde las zonas comunes.
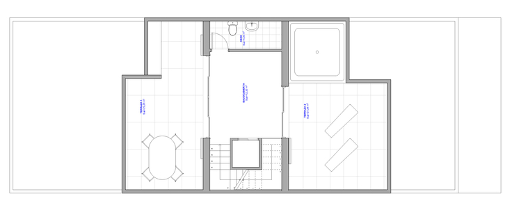
En planta de cubierta, una estancia que abre a dos terrazas, con la posibilidad de incorporar un jacuzzi en una de ellas, y unas magníficas vistas al Castillo de Santa Catalina.
Ficha técnica

